string(4) "3465"

Золоуловитель ЗУ-1 в Южно-Сахалинске

Версия
для печати
В наличии на складе Цена в рублях с НДС 140 000
Получите скидку
у менеджера
Цена на золоуловитель ЗУ-1 с доставкой от 140 000 рублей с НДС
Производительность, м³/ч8000
Применяемость1.7-1.86 МВт
Доставка ТК в г. Южно-Сахалинск и по России
Безналичный расчет
Опросный лист
Опросный лист
  • Технические
    характеристики
  • Описание
    товара
  • Дополнительно
    потребуется
  • Сертификаты и
    гарантии
  • Отзывы о
    продукции
  • Видео
    обзор
  • Компактный золоуловитель для твердотопливных котлов
  • Может устанавливаться как сразу за котлом, так и на улице
  • Универсальная конструкция позволяет организовать выход справа или слева, в зависимости от компоновки газоходов

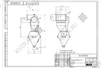
Технические характеристики золоуловителя ЗУ-1

Тип циклона Золоуловитель
Вид ЗУ
Марка ЗУ-1
КПД, % 80
Производительность, м³/ч 8000
Аэродинамическое сопротивление, Па (мм. вод. ст.) 700 (70)
Допустимая температура газов на входе до, °С 250
Сечение входного отверстия, мм 450х800
Диаметр выходного отверстия, мм 490
Объем бункера накопителя, м³ 1.2
Габаритные размеры: длина*ширина*высота, мм 1170х1175х2870
Направление газового потока правое
Масса, кг 370
Применяемость 1.7-1.86 МВт
Бренд KVZR

Золоуловитель ЗУ-1 в Южно-Сахалинске

Золоуловители ЗУ 1 относятся к типу горизонтального циклона по расположению оси очищаемого потока газа. Дымовой газ поступает во входное отверстие и движется между стенками корпуса. Под действием гравитационных сил из потока очищаемого газа выделяются твердые частицы, которые накапливаются в бункере. Зола удаляется через шибер. Очищенный газ отводится из золоуловителя по патрубку через выходное отверстие.

В комплект поставки золоуловителей входит: бункер-накопитель и корпус золоуловителя.

Золоуловитель представляет собой горизонтальный циклон, предназначенный для сухой инерционной очистки газов от летучей золы (более 50 мкм) с максимальной температурой 260 °С. Эксплуатируются в помещениях и вне помещений под навесом при температуре окружающего воздуха от -60 °С до +40 °С.

Золоуловители ЗУ-1 могут устанавливаться как сразу за котлом, так и за пределами котельной на группу котлов.

Золоуловители представляют собой корпус с криволинейными стенками, соединенный с источником выброса дымовых газов фланцем прямоугольного сечения на входном отверстии и круглым отверстием на боковой стенке для отвода очищенных газов. Соединения должны быть газоплотными с обязательным уплотнением асбестовым картоном или шнуром.

Золоуловитель ЗУ 1 применяется для улавливания золовых отложений после водогрейных котлов КВр и КВм мощностью 1.7 МВт, 1.74 МВт, 1.86 МВт, производства Котельный завод "РЭП", а также котлов других заводов изготовителей.

Купить золоуловитель ЗУ 1

Для того чтобы купить золоуловитель ЗУ-1 в Южно-Сахалинске, вы можете сделать заявку в отдел сбыта по телефону (38-52) 29-97-41 (42), либо оформить заказ онлайн. Наши менеджеры дадут консультацию и рассчитают стоимость доставки до вашего региона и населенного пункта.

Дополнительное вспомогательное оборудование для работы золоуловителя ЗУ-1

Для эффективной и надежной работы золоуловителя ЗУ-1 в вашей котельной вам потребуется дополнительное оборудование - газоход золоуловителя.

Производим газоходы по индивидуальному заказу. Системы газоходов могут включать в себя:

  • шиберы;
  • газоходы различного сечения;
  • переходы;
  • тройники;
  • карманы всасывающие ТДМ.
Цена 30 000 рублей с НДС

Дополнительные услуги

Сертификат и качество золоуловителя ЗУ-1

Циклоны и золоуловители производства Котельный завод "РЭП" соответствуют строгим стандартам качества и безопасности.

Циклоны имеют декларацию соответствия Техническим регламентам Таможенного союза ТР ТС 010/2011 «О безопасности машин и оборудования».

Промышленный золоуловитель ЗУ-1 включен в реестр российских производителей промышленного оборудования Минпромторг и имеют реестровую запись номер № 10729654 от 14.10.2025, сроком действия до 13.10.2028 подтверждающую российское происхождение продукции.

Промышленный золоуловитель ЗУ-1 имеет гарантийный срок 24 месяца и срок работы при соблюдении правил монтажа и эксплуатации оборудования 10 лет.

Сертификат для золоуловителей .jpg
Сертификат на золоуловители
Сертификат о происхождении товара форма СТ-1 .jpeg
Сертификат о происхождении товара (форма СТ-1)

Отзывы о продукции

Отзыва о товаре пока нет, будьте первыми!

Золоуловитель ЗУ представляет собой горизонтальный циклон, предназначенный очистки газов от летучей золы с температурой до 290 °С. Применяется для улавливания золы после водогрейных котлов КВр.

Смотреть видеообзор на

Вопрос-ответ

  • Технические
    характеристики
  • Описание
    товара
  • Дополнительно
    потребуется
  • Сертификаты и
    гарантии
  • Отзывы о
    продукции
  • Видео
    обзор
Документы завода
  • Сертификаты завода
  • Членство в СРО
  • Аттестованная технология сварки
  • Патенты на котельное оборудование
  • Товарные знаки
Смотреть все документы
Сертификат на водогрейные котлы на твердом и жидком топливе
Сертификат на водогрейные котлы на газе и жидком топливе
Сертификат на котлы отопительные паровые КП
Сертификат на топки
Сертификат на щиты управления
Сертификат на скиповые подъемники
Сертификат на золоуловители (циклоны)
Сертификат на конвейеры скребковые
Сертификат на дробилки
Сертификат на клапаны предохранительные
Сертификат на бункер-накопитель механизированный
Сертификат на автоматику газовых горелок
Сертификат о происхождении товара форма СТ-1
Членство в СРО
Членство в СРО
Аттестованная технология сварки
Свидетельство аттестованной технологии сварки
Патент на отопительный котел
Патент на водогрейный котел
Патент на топку водогрейного котла
Патент на водогрейный газовый котел
Патент на водогрейный котел
Патент на топочное устройство твердотопливного котла
Патент на водогрейный котел
HEATEXPERT товарный знак
KVZR товарный знак
STEAMEXPERT товарный знак
Другая похожая продукция
Золоуловитель ЗУ-2
Производительность, м³/ч8000
Применяемость1.7-1.86 МВт
140 000 р. Цена с НДС
Золоуловитель ЗУ-1-1
Производительность, м³/ч3375
Применяемость0.7-0.8 МВт
48 000 р. Цена с НДС
Золоуловитель ЗУ-1-2
Производительность, м³/ч6750
Применяемость1.28-1.5 МВт
68 000 р. Цена с НДС
Золоуловитель ЗУ-2-1
Производительность, м³/ч1200
Применяемость0.2-0.3 МВт
60 000 р. Цена с НДС
Золоуловитель ЗУ-2-2
Производительность, м³/ч1200
Применяемость0.2-0.3 МВт
60 000 р. Цена с НДС
Вы просматривали эти товары
Золоуловитель ЗУ-1
Производительность, м³/ч8000
Применяемость1.7-1.86 МВт
140 000 р. Цена с НДС
Котел 700 кг 170 С
Лизинг
Производительность, кг/ч700
ТопливоГаз
Температура пара, не более, °C170
Давление пара, не более, МПа0.9
1 001 000 р. Цена с НДС
Котел КВм 1.45 МВт с ТШПМ
Лизинг
Вид топкиТШПМ, Механическая
Максимальная тепловая мощность, МВт1.4
ТопливоТвердое, Уголь
Отапливаемая площадь, м²12000-16000
1 617 000 р. Цена с НДС
Золоуловитель ЗУ 1.6
ПрименяемостьКотлы мощностью 1.6 МВт
Производительность циклона, м³/ч6790-9840
68 000 р. Цена с НДС
background